現在環境污染比之前有了改 善,但是保護環境還的繼續做下去,煙氣脫硫脫硝一體化,煙氣脫硫脫硝裝置在處理鍋爐,冶金,化工等領域脫硫脫硝方面很好。
工藝介紹
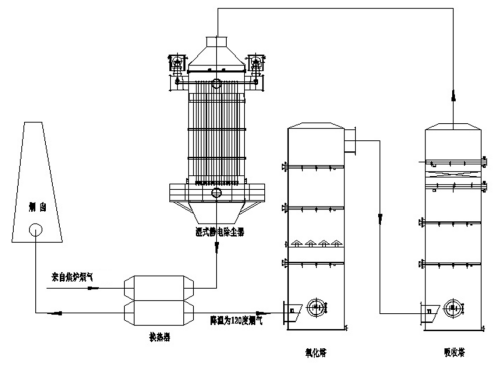
在焦爐煙氣進脫硫塔前面的高溫煙氣段及濕式電除塵器后面各增加一套GGH或者MGGH設備;在高溫煙氣段經過GGH或者是MGGH換熱后,將換熱后得到的熱量傳遞到低溫段,將低溫段煙氣溫度提高,使得煙氣溫度提升而達到“脫白”效果。
石灰石—石膏法脫硫
石灰石石膏法脫硫原理
脫硫過程
CaCO3+SO2+1/2H2O→CaSO3·1/2H2O+CO2
Ca(OH)2+SO2→CaSO3·1/2H2O+1/2H2O
CaSO3·1/2H2O+SO2+1/2H2O→Ca(HSO3)2
催化過程
2CaSO3·1/2H2O+O2+3H2O→2CaSO4·2H2O
Ca(HSO3)2+O2+2H2O→CaSO4·2H2O+H2SO4
煙氣脫硫脫硝還有很多方法,河北清達環保這里先給您介紹這兩種,具體方法關系我公司網站。